Katia RYBOJAD

Appartement - à vendre - 06300 NICE 649 000 € - 25-878

Appartement - À vendre - 06300 NICE
4 3 1 80 m²

Description

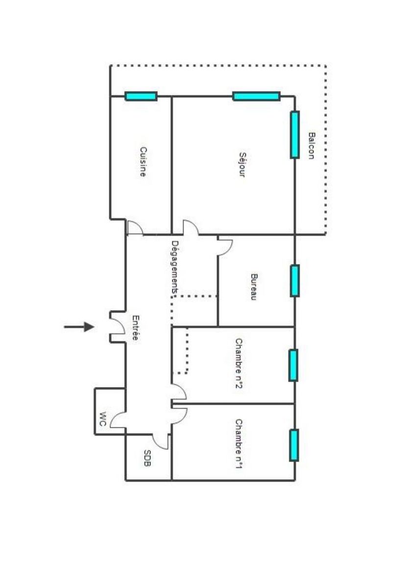
Dans le quartier le plus prisé du Port de Nice, tout proche de la place du pin et des écoles, découvrez ce superbe appartement d’angle de 4 pièces, niché en étage élevé.
Il offre une vue dégagée et une luminosité exceptionnelle, ce bien rare conjugue élégance par ses prestations de qualité, confort (rangement, volume) et son emplacement idéal (tous les commerces de proximités, écoles, tramway)
Un vaste séjour baigné de lumière grâce à ses ouvertures d'angle, une cuisine séparée qui peut complètement s'ouvrir, une salle de bain, un wc indépendant et trois chambres.
L'appartement est climatisé.
Une terrasse d'angle pour profitez d’un espace extérieur agréable vue sur les toits et la colline du château, parfait pour des moments de détente.
Son état est impeccable, avec des matériaux de qualité, l’appartement est prêt à accueillir ses nouveaux propriétaires.
Un parking et une cave en sous-sol : Un atout rare et précieux dans ce quartier recherché.

Les charges s'élèvent à 305 € par mois, chauffage, eau chaude, froide et gardiennage inclus.

Cet appartement offre une qualité de vie exceptionnelle.
Vivre ici, c’est profiter du charme de l'environnement agréable, du dynamisme du centre-ville et de la proximité immédiate des commerces, des restaurants et de la ligne de tramway.

Un bien rare sur le marché, à découvrir sans tarder ! Vidéo disponible
Contactez Katia RYBOJAD au 06.46.40.16.84.
Honoraires Agence à la charge du vendeur.
RSAC : 843 112 947

Performance Energétique

logement très performant
A
B
146kWh/m².an consommation
(énergie primaire)
24*kg Co2 /m².an émissions
(gaz à effet de serre)
C
D
E
passoire
énergétique
F
G
logement extrèmement peu performant
* Dont émissions de gaz
à effet de serre
peu d'émissions de CO2
A
B
C
24 kg Co2 /m².an
D
E
F
G
émissions de CO2 très importantes

Montant estimé des dépenses annuelles d'énergie pour un usage standard
Entre 1028 € et 1390 € par an
Prix moyen des énergies au 2023-01-01 (abonnement compris)

Informations complémentaires

Honoraires à charge du vendeur.

Les biens ci-avant désignés représentant les lots n° de la copropriété qui comporte 216 lots.
La moyenne des charges courantes annuelles pour ces lots est de €/an.

Nos honoraires

Les informations sur les risques auxquels ce bien est exposé sont disponibles sur le site Géorisques: www.georisques.gouv.fr

Général

Référence 25-878
Référence 6873343
Catégorie Appartement
Meublé Non
Nombre de chambres 3
Nombre de salles de bain 1
Garage Non
Terrasse Oui
Parking Oui
Surface habitable 80 m²

Bâtiment

Année de construction 1967
Bien en copropriété Oui
Nombre de lots 216

Nom, catégorie & situation

Etage 5
Nombre d'étage 7

Equipements de base

Accès PMR Oui
Cuisine Oui
Climatisation Oui
Ascenseur Oui
Double vitrage Oui
Chauffage (type) Gaz (chau. centr.)
Type de cuisine Équipée
Double vitrage (type) Isolation thermique et acoustique
Interphone Oui

En chiffres

WC (nombre) 1
Chambre 1 (surface) 9.300000190734863 m²
Chambre 2 (surface) 12.899999618530273 m²
Chambre 3 (surface) 12.5 m²
Nombre de terrasses 1
Surface du séjour 17.5 m²
Surface de la cuisine 9 m²
Surface salle de bain 3.5 m²
Pièces (nombre) 4
Surface (Loi Carrez) 80 m²

À proximité de

Transports en commun (distance (m)) 2000
Plage (distance (m)) 1000
Autoroute (distance (m)) 10000

Coûts & Frais

Taxe foncière (montant) 1621 €

Domaine juridique

Procédure en cours Oui

Principales caractéristiques

Surface de terrasse 1 13 m²

Sécurité

Alarme Oui
Concierge Oui

Certificats / Attestations

Certificat d'électricité (oui/non) oui, conforme
Estimation des coûts/annuels minimum (prix) 1028 €
Estimation des coûts/annuels maximum (prix) 1390 €
Année de référence pour le calcul des coûts 2023
État risque et pollution Oui
État risque et pollution 18/03/2025
État parasitaire Oui
État parasitaire 18/03/2025
Amiante (obligatoire pour tous les biens construits avant 1997) Oui
Amiante (obligatoire pour tous les biens construits avant 1997) 18/03/2025
Électrique 18/03/2025

Certificats énergétique

Classe DPE C
DPE (Kwh/m²/an) 146
Émission GES (émission CO2) 24
Date de réalisation du DPE 18/03/2025

Charges & Rendement

Charges propriétaire (montant) 3660 €

Informations contractuelles

Type d'honoraire Honoraires à la charge du vendeur
Numéro de mandat 25-878
Objet du mandat (type) Mandat de vente
Prendre contact pour le bien : 6873343

* Champs obligatoires

Sélection des points d'intérêts

Biens similaires

Préférences pour les cookies

La protection de vos données personnelles est importante pour nous. C’est pourquoi nous détaillons ci-dessous les différents services et fonctionnalités du site qui utilisent des cookies et nous vous laissons décider des cookies que vous souhaitez autoriser ou refuser.

Veuillez cependant noter que si vous bloquez certains types de cookies, cela pourrait impacter votre expérience de navigation sur notre site ainsi que les fonctionnalités disponibles.

Nous utilisons des cookies fonctionnels obligatoires pour assurer le bon fonctionnement du site. Ils sont, par exemple, nécessaires pour retrouver le résultat d’une recherche ou enregistrer le choix de la langue.

Certaines fonctionnalités, comme l’affichage de vidéos ou de cartes géographiques, sont assurées via des composants externes développés par des partenaires comme YouTube ou Google. Certains composants utilisent des cookies qui sont susceptibles de permettre à ces tiers de suivre le comportement des internautes afin, par exemple, de réaliser du ciblage publicitaire. L’activation de ces fonctionnalités et des cookies associés est donc soumis à votre consentement.