Laure ALBERT

Appartement - à vendre - 06200 NICE 355 000 € - 25-049-8

Appartement - À vendre - 06200 NICE
3 2 1 67,2 m²

Description

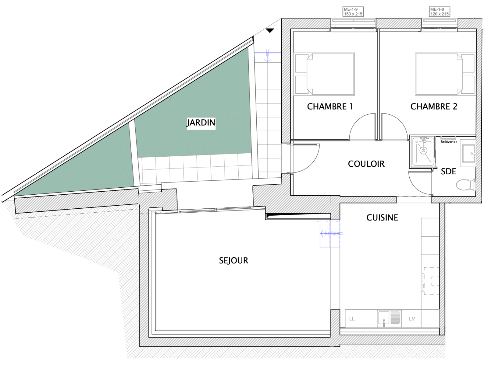
Dans une résidence récente et sécurisée, idéalement située à deux pas du CHU de l’Archet, découvrez ce charmant 3 pièces en rez-de-jardin alliant confort et calme.

L’appartement de 67,2 m² se compose :

- d’une grande pièce à vivre avec une partie salon séjour bien distincte de la cuisine ouverte,
- de deux chambres,
- d’une salle d’eau moderne,
- et d’un jardinet privatif de 21 m², parfait pour les moments de détente ou repas en extérieur.

Ce bien est vendu avec une place de stationnement !

Entièrement rénové avec des matériaux de qualité,
Calme et lumineux
Proximité immédiate CHU,

Idéal résidence principale

Une vidéo est disponible pour ce bien.


Les informations sur les risques auxquels ce bien est exposé sont disponibles sur le site Géorisques : www.georisques.gouv.fr.

Adresse :

176 route de Saint Antoine - 06200 NICE

Performance Energétique

logement très performant
A
B
C
D
E
passoire
énergétique
F
G
logement extrèmement peu performant
* Dont émissions de gaz
à effet de serre
peu d'émissions de CO2
A
B
C
D
E
F
G
émissions de CO2 très importantes

Informations complémentaires

Honoraires à charge du vendeur.

Les biens ci-avant désignés représentant les lots n° de la copropriété qui comporte 14 lots.
La moyenne des charges courantes annuelles pour ces lots est de €/an.

Nos honoraires

Les informations sur les risques auxquels ce bien est exposé sont disponibles sur le site Géorisques: www.georisques.gouv.fr

Général

Référence 25-049-8
Référence 6873701
Catégorie Appartement
Meublé Non
Nombre de chambres 2
Jardin Oui
Surface du jardin 21 m²
Garage Non
Terrasse Oui
Parking Non
Surface habitable 67,2 m²

Spécificités terrain

Orientation du bâtiment (façade arrière) Sud-est

Equipements de base

Cuisine Oui
Chauffage (ind/coll) Individuel
Chauffage (type) Pompe à chaleur
Type de cuisine Non-équipée

En chiffres

WC (nombre) 1
Nombre de salle de douche 1
Pièces (nombre) 3
Surface (Loi Carrez) 67.19999694824219 m²

Domaine juridique

Procédure en cours Non

Certificats / Attestations

Certificat d'électricité (oui/non) non

Certificats énergétique

Classe DPE NI

Charges & Rendement

Charges propriétaire (montant) 1200 €

Informations contractuelles

Type d'honoraire Honoraires à la charge du vendeur
Numéro de mandat 25-049-8
Objet du mandat (type) Mandat de vente

Bâtiment

Bien en copropriété Oui
Nombre de lots 14
Prendre contact pour le bien : 6873701

* Champs obligatoires

Sélection des points d'intérêts

Biens similaires

Préférences pour les cookies

La protection de vos données personnelles est importante pour nous. C’est pourquoi nous détaillons ci-dessous les différents services et fonctionnalités du site qui utilisent des cookies et nous vous laissons décider des cookies que vous souhaitez autoriser ou refuser.

Veuillez cependant noter que si vous bloquez certains types de cookies, cela pourrait impacter votre expérience de navigation sur notre site ainsi que les fonctionnalités disponibles.

Nous utilisons des cookies fonctionnels obligatoires pour assurer le bon fonctionnement du site. Ils sont, par exemple, nécessaires pour retrouver le résultat d’une recherche ou enregistrer le choix de la langue.

Certaines fonctionnalités, comme l’affichage de vidéos ou de cartes géographiques, sont assurées via des composants externes développés par des partenaires comme YouTube ou Google. Certains composants utilisent des cookies qui sont susceptibles de permettre à ces tiers de suivre le comportement des internautes afin, par exemple, de réaliser du ciblage publicitaire. L’activation de ces fonctionnalités et des cookies associés est donc soumis à votre consentement.