Flat - for sale - 06000 NICE 441,000 € - 2411

Flat - for sale - 06000 NICE
2 1 1 67.5 m²

Description

Energy Performance

high-performance housing
A
B
C
D
184kWh/m².year consumption
(primary energy)
57*kg Co2 /m².year emissions
(greenhouse gas)
E
poor energy
performance
F
G
extremely poorly performing housing
* Of which greenhouse gas emissions
low CO2 emissions
A
B
C
D
E
57 kg Co2 /m².year
F
G
very high CO2 emissions

Estimated annual energy costs for standard use
Between 1470 € and 2030 € per year
Average energy price at 2021-01-01 (including subscription)

Further information

The property designated above representing lots n° of the co-ownership which comprises 105 lots.
The average annual running costs for these lots is €/year.

Our fees

www.georisques.gouv.fr

General

Reference 2411
Reference 6879479
Category Flat
Furnished No
Number of bedrooms 1
Garage No
Terrace Yes
Parking No
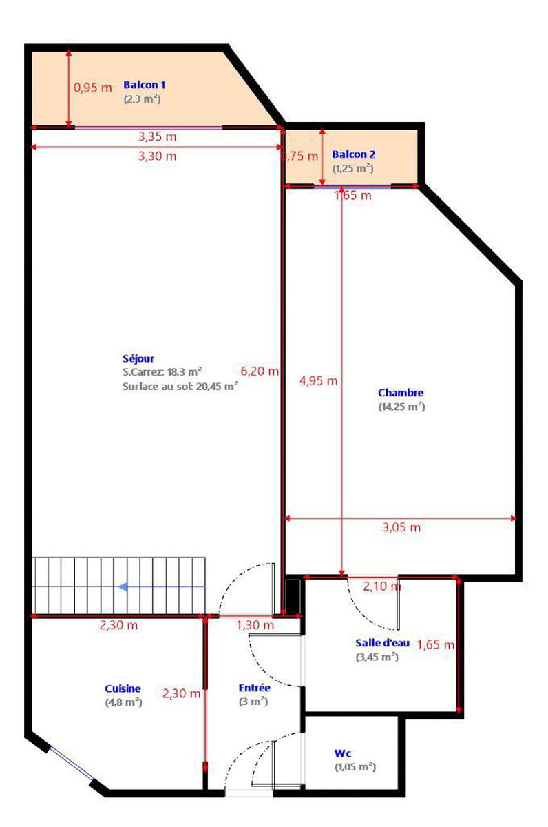
Habitable surface 67.5 m²
Availability immediately

Name, category & location

Floor 7
Number of floors 7

Basic Equipment

Access for people with handicap Yes
Kitchen Yes
Type (ind/coll) of heating collective
Elevator Yes
Type of heating oil (centr. heat.)
Type of kitchen hyper equipped
Intercom Yes

General Figures

Number of toilets 1
Number of showerrooms 1
Room 1 (surface) 14.25 m²
Living room (surface) 20.450000762939453 m²
Kitchen (surf) (surface) 4.8 m²
Showerrooms (surface) 3.45 m²
Nr of rooms (number) 2
Area (French Carrez law) (surface) 43.91999816894531 m²

Prices & Costs

Land tax (amount) 1208 €

Outdoor equipment

Pool No

Charges & Productivity

Property occupied No
Charges owner (amount) 2476 €

Security

Security door Yes

Next To

Nearby shops Yes
Nearby schools Yes
Nearby public transports Yes
Nearby beach Yes

Certificates

Yes/no of electricity certificate yes, conform
Estimated minimum annual estates costs (price) 1470 €
Estimated maximum annual estates costs (price) 2030 €
Year of reference 2021
Lead (mandatory for a property dating from before 1949) Yes
Lead (mandatory for a property dating from before 1949) 10/3/2024
Risk and pollution situation Yes
Risk and pollution situation 10/3/2024
Parasitic condition Yes
Parasitic condition 10/3/2024
Asbestos (mandatory for all properties built before 1997) Yes
Asbestos (mandatory for all properties built before 1997) 10/3/2024
Electric 10/3/2024
Gas 10/3/2024

Various

Cellars Yes

Energy Certificates

Energy certif. class
Energy consumption (kwh/m²/y) 184
CO2 emission 57
PEB date 10/3/2024

Building

Condominium property Yes
Number of batches 105
Contact for estate : 6879479

* Mandatory fields

Selection of points of interest

Similar properties

Cookies preferences

The protection of your personal data is important to us. This is why we detail below the different services and features of the site that use cookies and let you decide which cookies you want to allow or refuse.

Please note, however, that if you block certain types of cookies, this could impact your browsing experience on our site as well as the available features.

We use mandatory functional cookies to ensure the proper functioning of the site. They are, for example, necessary to find the result of a search or to save the choice of language.

Certain functions, such as the display of videos or maps, are provided via external components developed by partners such as YouTube or Google. Certain components use cookies which are likely to allow these third parties to follow the behavior of Internet users in order, for example, to carry out advertising targeting. The activation of these features and the associated cookies is therefore subject to your consent.